Marine Engineering


Our marine engineering services deliver reliable, efficient, and fully integrated ship systems.

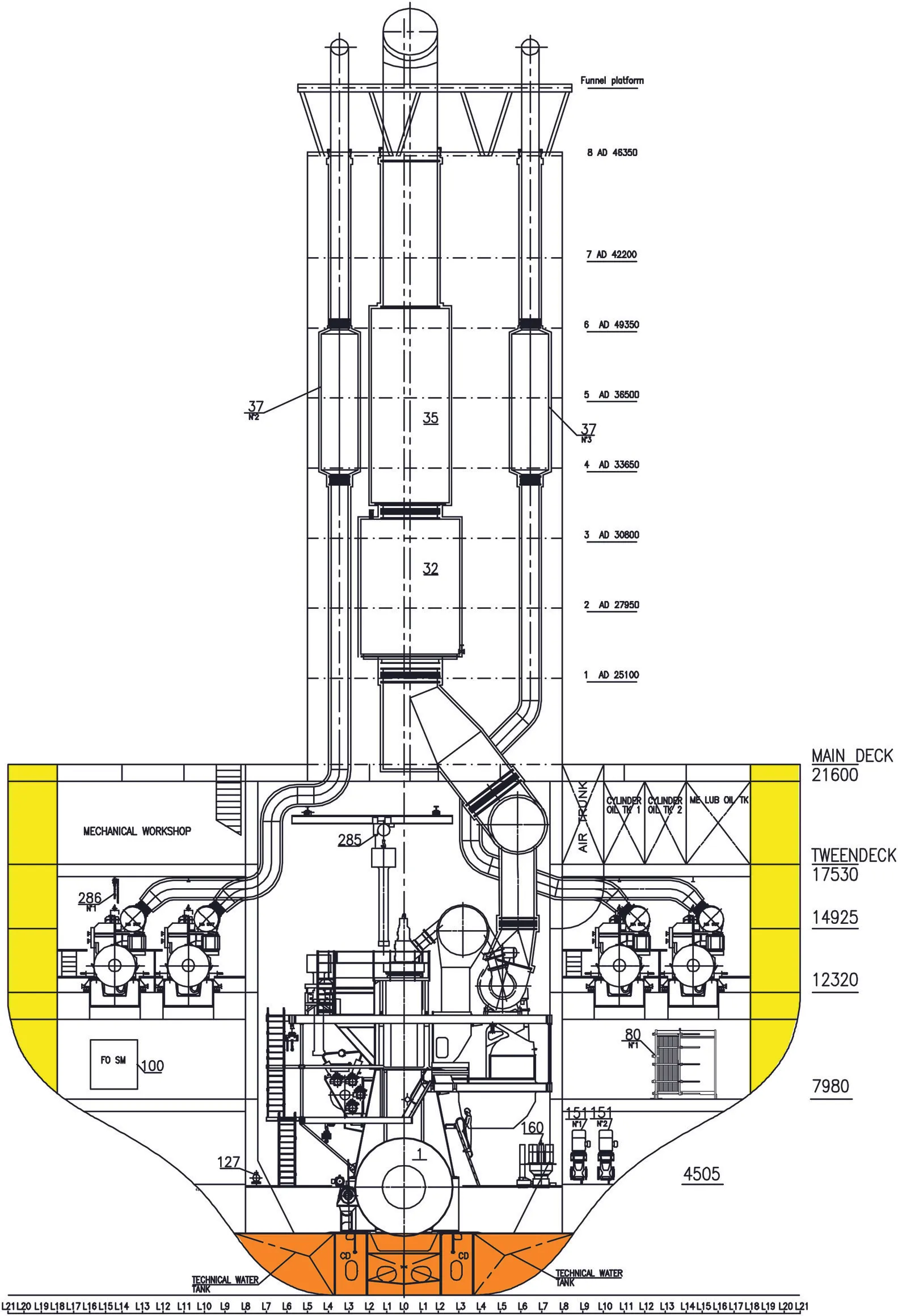
Engineering scope includes:

  • Propulsion and auxiliary machinery design
  • Fuel, ballast, bilge, and cooling systems
  • Machinery space optimization
  • Equipment selection and system integration
  • Energy efficiency and sustainability solutions

We ensure every system functions seamlessly onboard.

services

+971(0)504439727

If You Need Any Help
Contact With Us

Go Back Top